Tontit

Omakotitontit/rivitalotontit
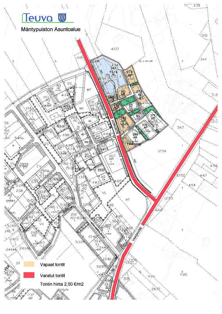
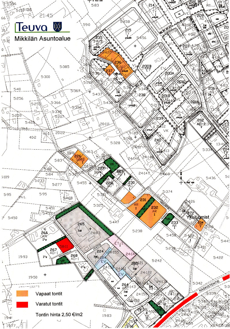
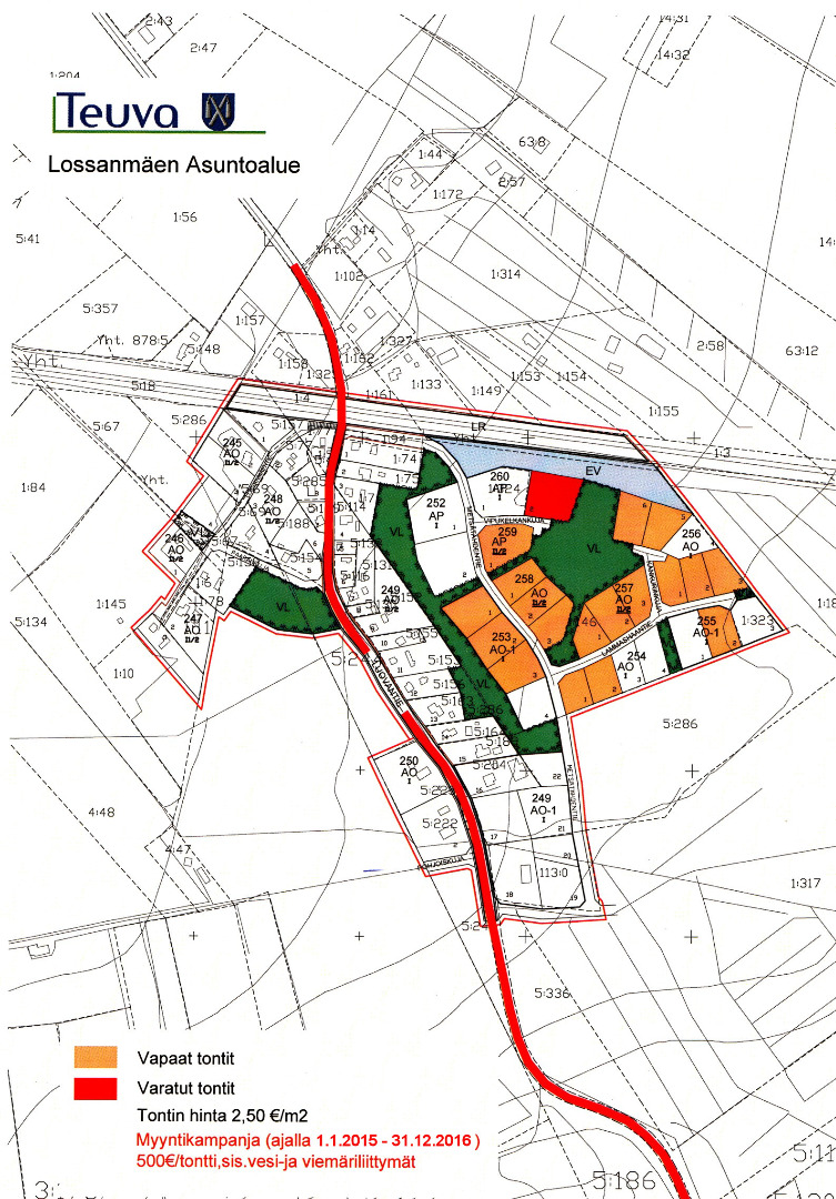
Omakotitontteja on tarjolla keskustan alueella viidessä eri kohteessa, joista uusin on Uimahallin asuntoalue. Kauppilan, Norin, Perälän, Riipin ja Äystön kylätaajamissa on kaavoitettuja tonttialueita yhteensä n. 11 ha. Rivitalorakentamiseen varattuja tontteja on mm. Uimahallin ja Mikkilän alueilla.
Teuvan kunnan vapaat asuntotontit:
| Kaava-alueet: | Asuntoalueet: |
| Mikkilä | Kauppila |
| Lossanmäki | Perälä |
| Mäntypuisto | Riippi |
| Rasi | Äystö |
| Uimahalli |
Teollisuustontit
Teollisuustontteja on mm. kantatien pohjoispuolella sijaitsevalla Kafin teollisuusalueella.
Parran loma-asuntotontit
Parran mökkitonttien myyntiä hoitaa Suupohjan Osuuspankki, p. 020 166 6108.
Kaikille asuntoalueille on saatavissa hyvät tietoliikenneyhteydet esim. ADSL ja tarvittaessa valokuituliittymä (SUNET / Suupohjan Seutuverkko Oy).
Tonttitiedustelut:
Rakennustarkastaja Vesa Osmo, puh. 0500 286 115
Tutustuthan myös tonttikampanjaamme!